Beschrijving

Zeer luxe en instapklaar 3-kamerappartement van ca. 81 m², gelegen op de eerste verdieping, met lift van een modern en goed onderhouden appartementencomplex (bouwjaar 2006), met energielabel A. De woning beschikt over een eigen parkeerplaats op het afgesloten binnenterrein én een ruime inpandige berging in de onderbouw.

Het appartement is hoogwaardig afgewerkt en beschikt over een royale, lichte woonkamer met vrij uitzicht, een moderne open keuken (2019), een luxe badkamer (2019), twee ruime slaapkamers en een zonnig balkon op het oosten. De gehele woning is voorzien van een stijlvolle PVC vloer, glad gestuukte wanden, dubbele beglazing, en wordt verwarmd via een HR CV-combiketel (Agpo, 2020). Daarnaast is er een mechanisch ventilatiesysteem met warmte-terugwin-unit, wat bijdraagt aan het duurzame karakter van de woning.

De woning is zeer centraal gelegen, vlak bij het centrum van Dordrecht, met winkels, supermarkten (zoals Dirk van den Broek), scholen, sportaccommodaties en openbaar vervoer op loopafstand. Dankzij de nabijheid van de Frans Lebretlaan zijn uitvalswegen richting de A16 en N3 snel bereikbaar. Een ideale locatie voor wie comfortabel en centraal wil wonen.

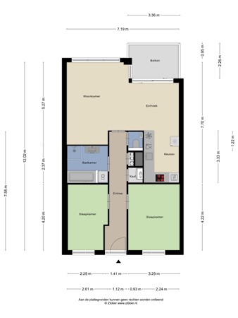
Indeling

Centrale ontvangstruimte:
Het appartementencomplex beschikt over een representatieve gezamenlijke entree aan de zijkant van het gebouw. Hier bevinden zich het brieven- en bellentableau, een video-intercominstallatie, een lift en een keurig verzorgd trappenhuis. De centrale hal biedt toegang tot de inpandige bergingen en het afgesloten binnenterrein met privéparkeerplaatsen.	 

Indeling appartement op de eerste verdieping:

Entree:
Bij binnenkomst in het appartement betreed je een ruime hal die direct een verzorgde indruk achterlaat. De wanden zijn strak gespoten en de vloer is, net als in de rest van de woning, afgewerkt met een moderne PVC vloer. Vanuit de hal zijn vrijwel alle vertrekken toegankelijk, waaronder de woonkamer, beide slaapkamers, de badkamer, het separate toilet, de technische ruimte en de meterkast. De meterkast is uitgerust met 7 groepen (waarvan 1 dubbele) en twee aardlekschakelaars.

Toilet:
De separate toiletruimte is in 2019 vernieuwd en uitgevoerd in een moderne, lichte kleurstelling. Het toilet is voorzien van een zwevend closet en een stijlvol fonteintje. Een nette en functionele ruimte die perfect aansluit bij de rest van het appartement.

Woonkamer:
De royale woonkamer is het kloppend hart van het appartement. Dankzij de grote raampartijen geniet je hier van een overvloed aan daglicht en een vrij uitzicht op de omgeving. De combinatie van strakke wanden, de warme PVC vloer en de uitstekende lichtinval zorgt voor een comfortabele en sfeervolle leefruimte. Via een brede schuifpui is er directe toegang tot het zonnige balkon, waardoor binnen en buiten mooi in elkaar overlopen.

Keuken: 
De open keuken is in 2019 volledig vernieuwd en uitgevoerd in een lichte kleurstelling met een donker kunststof werkblad. Deze royale keuken is niet alleen stijlvol, maar ook bijzonder functioneel ingericht met veel kastruimte. Uiteraard is de keuken voorzien van alle gewenste inbouwapparatuur, waaronder een koelkast met vriesvak, een vaatwasser, een combi-oven/magnetron, een afzuigkap en een inductie kookplaat. Een heerlijke plek om uitgebreid te koken of juist snel een maaltijd te bereiden.

Balkon:
Het zonnige balkon is bereikbaar vanuit de woonkamer via een schuifpui en meet circa 3,36 x 2,26 meter. Gelegen op het oosten is dit de perfecte plek om in de ochtend te genieten van een kop koffie in de zon. Het balkon is voorzien van terrastegels en biedt een fraai uitzicht over de omgeving.	 
 	 
Badkamer: 
De luxe badkamer is in 2019 compleet vernieuwd en met zorg afgewerkt in een moderne, lichte stijl. De ruimte is uitgerust met een comfortabele duo-ligbad met thermostaatkraan, een aparte douchecabine met thermostatische mengkraan, een wastafel met planchet, spiegel en moderne badkamermeubels. Daarnaast is er een aansluiting voor zowel wasmachine als droger aanwezig. Mechanische ventilatie zorgt voor een prettig binnenklimaat.

Technische ruimte:
In de praktische technische ruimte zijn de installaties van de woning ondergebracht. Hier vind je de energiezuinige Agpo HR combiketel uit 2020 en de mechanische ventilatie met warmte-terugwin-unit. Ook is er extra opbergruimte voor bijvoorbeeld schoonmaakspullen of voorraad.
 
Slaapkamers:
Slaapkamer 1 (4,22 x 3,29), is gelegen aan de voorzijde van de woning en biedt voldoende ruimte voor een tweepersoonsbed en een grote kledingkast. De wanden zijn glad gestuukt en de ruimte ademt rust en comfort uit.	 
Slaapkamer 2 (4,20 x 2,61/2,29), is gelegen aan de voorzijde. Deze kamer is ideaal als logeerkamer, werkruimte of kinderkamer. Ook hier zijn de wanden strak afgewerkt en is er voldoende daglicht.

Parkeerplaats:
Bij het appartement hoort een ruime privéparkeerplaats op het afgesloten binnenterrein van het complex. Zo heb je altijd een veilige en vaste plek voor je auto, direct bij huis.
 	 
Berging:
In de onderbouw van het complex bevindt zich een eigen, ruime inpandige berging. Hier is voldoende plek voor het stallen van fietsen en het opbergen van spullen die je niet dagelijks nodig hebt.

Overige: 
- 	Het appartementencomplex beschikt over een actieve en gezonde Vereniging Van Eigenaren. De maandelijkse bijdrage is € 145,51;
- 	De woning houten kozijnen met dubbel glas;
- 	Centrale verwarming werkt middels een HR CV Combiketel (Agpo, 2020);
- 	Gehele appartement voorzien van glad gestuukte of gespoten wanden en plafonds;
- 	Volledig gemoderniseerd in 2019;
- 	Eigen parkeerplaats op een afgesloten buitenterrein;
- 	Rondom het complex kunt u gratis parkeren;
- 	Energielabel A, geldig tot 21 augustus 2029;
- 	Oplevering begin januari 2026.

Omgeving:
Brouwersdijk 115c is zeer gunstig gelegen op een centrale locatie in Dordrecht in de wijk Oud Krispijn, aan de rand van het centrum. Binnen enkele minuten fiets je naar het gezellige stadscentrum met een ruim aanbod aan winkels, horeca en cultuur. Voor de dagelijkse boodschappen ligt de supermarkt Dirk van den Broek letterlijk om de hoek. Ook op het gebied van scholen, sport en recreatie zit je hier perfect: diverse basis- en middelbare scholen, sportverenigingen en fitnesscentra bevinden zich op korte afstand. Daarnaast zijn er meerdere groenvoorzieningen en parken in de omgeving waar je heerlijk kunt wandelen of ontspannen. De locatie is bovendien uitstekend bereikbaar, zowel met de auto als met het openbaar vervoer. Bushaltes bevinden zich op loopafstand en via de nabijgelegen uitvalswegen ben je zo op de A16 of N3 richting Rotterdam, Breda of Gorinchem.

Kenmerken