Beschrijving

Zeer goed onderhouden vrijstaande dijkwoning met privé parkeerplaats en in totaal 119 m² oppervlakte wonen en souterrain, op een perceel eigen grond van 159 m² en met een uitstekende ligging!

Deze woning is op dijkniveau voorzien van een entree met toilet, ruime doorzon woonkamer en luxe half open keuken (2024) met diverse inbouwapparatuur. De 1e verdieping biedt plaats aan een luxe badkamer (2023) met inloopdouche en wastafelmeubel, drie ruime slaapkamers, waarvan twee met een dakkapel en een luik naar de zolderruimte. Het onderhuis biedt vele mogelijkheden en is 40 m² groot en wordt nu vooral als bergruimte gebruikt.

De heerlijk ruime tuin ligt achter de woning en is voorzien van een overkapping, vijvers, vaste planten en gras. 

De woning is geheel voorzien van hardhouten kozijnen met grotendeels HR++ glas en gedeeltelijk dubbel glas, CV installatie (Intergas, 2017), de dakgoten, regenafvoeren en overstekken zijn in 2023 vervangen en de gevel is voorzien van metselwerk en kunststof rabatdelen.

De woning beschikt over een gebruiksoppervlakte van circa 79 m² en een onderhuis (inpandige ruimte) van circa 40 m². 

De woning is gelegen op fietsafstand van het centrum van Hardinxveld-Giessendam en een supermarkt en op loopafstand van scholen, zowel basis- als voortgezet onderwijs en vlakbij een treinstation. Verder is de oprit van de A15 slechts 1 minuut rijden.

Indeling

Dijkniveau:
Aan de voorzijde van de woning is een privé parkeerplaats en de entree van de woning. 
	 
Entree:
De entree biedt toegang tot het toilet, de woonkamer en trapopgang naar de 1e verdieping. De vloer is voorzien van een PVC vloer. In de vloer is een luik aanwezig met toegang tot het souterrain, tevens is er een trapkast aanwezig.

Toilet:
De toiletruimte is vernieuwd in 2023, geheel betegeld en is voorzien van een wandcloset.

Keuken:
De moderne half open keuken is vernieuwd in 2024, gesitueerd aan de achterzijde. De keuken is uitgevoerd in hoek-opstelling en is voorzien van een kunststof aanrechtblad en achterwand en beschikt over diverse inbouwapparatuur, te weten; vaatwasser, combi oven/magnetron, 4-pits gaskookplaat, RVS afzuigkap en een koel/vriescombinatie. Vanuit de keuken loopt u zo het balkon op aan de achterzijde. 

Balkon:
Het zonnige balkon is gelegen op het zuiden en bereikbaar vanuit de keuken en voorzien van een stalen trap naar de tuin. 
	 
Woonkamer:
De ruime doorzon woonkamer is voorzien van een laminaatvloer en een sfeervolle gashaard, naast de moderne CV installatie. Het balkenplafond en de gemetselde schouw geven de woonkamer extra sfeer.
	 
1e verdieping: 

Overloop:
De overloop op de verdieping is afgewerkt met tapijt en geeft toegang tot drie slaapkamers, de badkamer en een vaste kast. Ook is er, middels een luik, toegang naar een bergzolder. Op de overloop is tevens de opstelplaats van de HR CV-combiketel (Intergas, 2017). 
	 
Badkamer:
De luxe badkamer is vernieuwd in 2023 en gelegen aan de voorzijde. De badkamer is voorzien van een inloopdouche, wastafelmeubel en een designradiator. Een opengaand raam zorgt voor voldoende ventilatie.

Slaapkamer 1: 
De slaapkamer is gesitueerd aan de voorzijde en is voorzien van tapijt, vaste kast en twee ramen, waarvan één in de dakkapel. 

Slaapkamer 2: 
De slaapkamer is gesitueerd aan de zijkant en is voorzien van een laminaatvloer, vaste kast en een raam in de dakkapel. 
	 
Slaapkamer 3: 
De slaapkamer is gesitueerd aan de achterzijde en is voorzien van tapijt en twee vaste kasten 
	 
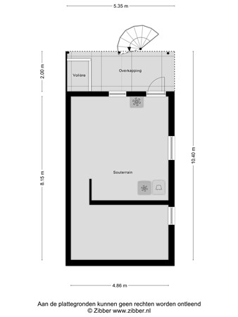
Onderhuis / Souterrain: 
In het onderhuis / souterrain van maar liefst 40 m², is geschikt om als woonruimte te maken en biedt een breed scala aan mogelijkheden. Op dit moment is treft u veel bergruimte en de aansluiting voor de wasmachine en droger. Via een vaste steile trap is de woning binnendoor bereikbaar, tevens een deur naar de achtertuin.

Tuin: 
De tuin is gelegen op het zonnige zuiden en voorzien van gras, twee vijvers, tegels, vaste planten en een overkapping onder het balkon. Een heerlijke plek om te vertoeven. Vanuit de tuin toegang tot het riante onderhuis/souterrain. 	 
 	 
Overige:
- 	Geheel voorzien van hardhouten kozijnen met grotendeels HR++  beglazing en gedeeltelijk dubbele beglazing, één glas-in-lood raam in de woonkamer;
- 	De dakgoten, overstekken en regenafvoeren zijn in 2023 rondom vervangen;
- 	Het bitumen op de dakkapel is in 2023 vervangen;
- 	De nokpannen zijn in 2023 opnieuw in cement gelegd;
- 	De schoorsteen is in 2023 opnieuw gevoegd;
- 	Houten dakkapel aan de zijkant;
- 	De keuken en badkamer zijn de afgelopen twee jaar vernieuwd;
- 	Multifunctioneel souterrain / onderhuis;
-	Parkeren voor de deur;
- 	Energielabel G, geldig tot 30 april 2035
- 	Aanvaarding: in overleg (voorkeur 4 september 2025).

Kenmerken