Beschrijving
Heerlijk vrij wonen! Ruime 2-onder-1-kapwoning met garage gelegen net buiten de bebouwde kom van Leerbroek op een perceel van maar liefst 613 m2 met zowel aan de voor- als achterzijde prachtig vrij uitzicht over de weilanden!
De woning is praktisch van indeling met op de begane grond een doorzon woonkamer met vrij uitzicht over het uitgestrekte polderlandschap aan de voorzijde. Daarnaast zijn een keuken, badkamer en toilet in de lange aanbouw gesitueerd. Op de 1e verdieping bevinden zich 4 (slaap)kamers en is er toegang tot een praktische bergzolder.
De voortuin is voorzien van een lange oprit met voldoende parkeergelegenheid op eigen grond. De tuin biedt verder onder meer plaats aan een garage, aangebouwde stenen berging met kelder, en een tuinkas. De circa 50 meter diepe achtertuin biedt daarnaast plaats aan een moestuin en boomgaard en grenst ook aan de achterzijde aan het weidse polderlandschap.
De woning is gedateerd en is toe aan een opfrisbeurt maar biedt dankzij de ruimte, royale perceeloppervlakte en heerlijk vrije ligging een uitstekende basis voor wie op zoek is naar ruimte en mogelijkheden.
De ligging is uitstekend; heerlijk rustig aan de rand van het dorp in een landelijke omgeving. Leerbroek biedt diverse basisvoorzieningen zoals een basisschool, dorpshuis en sportvelden en in circa 15 minuten bevindt je je in steden als Leerdam en Gorinchem. Kortom een perfecte ligging voor wie rust en ruimte zoekt, maar toch verbonden wil blijven met de regio!
Indeling
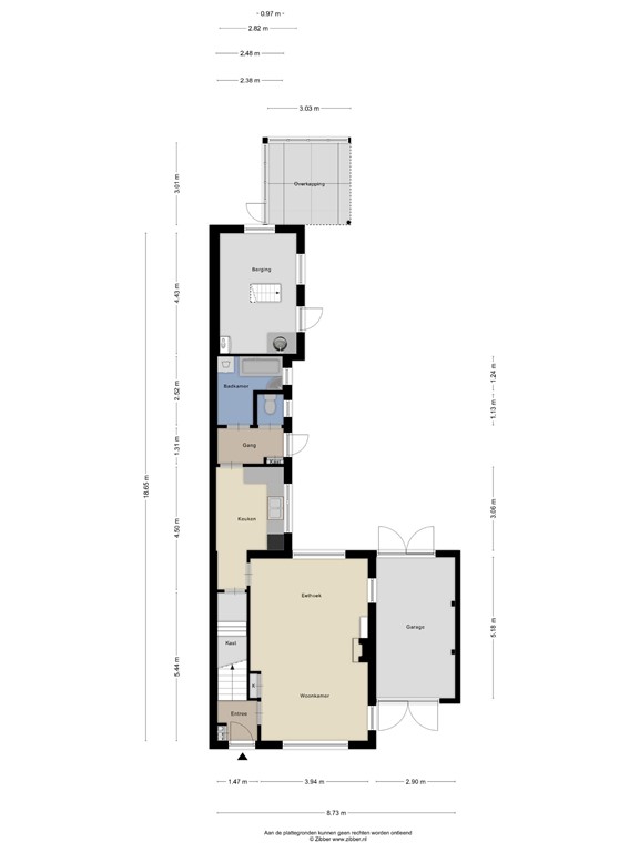
Begane grond:
Voortuin:
De voortuin is voorzien van een lange oprit met voldoende parkeergelegenheid. Via de entree is er toegang naar de woning.
Entree:
De entree biedt plaats aan de vernieuwde meterkast (3 groepen). De vaste trapopgang biedt toegang naar de 1e verdieping. Tevens is er toegang naar de woonkamer.
Woonkamer:
De ruime doorzon woonkamer biedt aan de voorzijde prachtig vrij uitzicht over het uitgestrekte polderlandschap. Verder is de woning voorzien van een vaste kast en een balkenplafond.
Keuken:
De keuken is gesitueerd in de lange aanbouw aan de achterzijde. De keuken in hoekopstelling is uitgevoerd in lichte kleurstelling met kunststof aanrechtblad en enige inbouwapparatuur, te weten; 4-pits gaskookplaat, afzuigkap en oven. Tevens biedt de keuken plaats aan een praktische kelderkast en de opstelplaats van de keukengeiser (Vaillant, 2021). De vloer is voorzien van laminaat.
Hal achterzijde:
De hal aan de achterzijde biedt toegang naar de achtertuin, het toilet en de badkamer.
Toilet:
Het toilet is gedeeltelijk betegeld en beschikt over een ventilatieraam.
Badkamer:
De geheel betegelde badkamer is voorzien van een ligbad, wastafel en aansluiting voor de wasmachine.
Eerste verdieping:
Overloop:
De overloop op de 1e verdieping biedt toegang tot 4 (slaap)kamers en middels een steektrap is er toegang naar de bergzolder met een nokhoogte van circa 1,50 meter.
Slaapkamers:
Slaapkamer 1 is gelegen aan de achterzijde van de woning en is voorzien van een vaste kast en vrij uitzicht over de tuin en het polderlandschap.
Slaapkamer 2 aan de voorzijde is eveneens voorzien van een vaste kast en vrij uitzicht over het polderlandschap.
Slaapkamer 3 is gelegen aan de voorzijde en is ook voorzien van een vaste kast en vrij uitzicht over het polderlandschap.
Slaapkamer 4 is gelegen aan de achterzijde en biedt plaats aan een toilet en een wastafel met betegelde achterwand.
Garage:
De garage is voorzien van een betonvloer, zowel aan de voor- als achterzijde openslaande deuren en een elektravoorziening.
Berging met kelder:
De aangebouwde berging is voorzien van een betonvloer, verwarming, lavet en biedt plaats aan de HR CV-combiketel (Intergas, 2023). Tevens is er toegang naar een praktisch kelder (hoogte 1,43 meter).
Tuin:
De circa 50 meter (!) diepe achtertuin is voorzien van bestrating, veranda/overkapping, bergruimte, volière, tuinkas, moestuin en een echte boomgaard. De tuin grenst aan de achterzijde aan het weidse polderlandschap.
Overige:
De woning is nagenoeg geheel voorzien van (hard)houten kozijnen met dubbele beglazing;
Centrale verwarming middels een HR CV-combiketel (Intergas, 2023);
Begane grond constructievloer beton/hout. Verdiepingsvloer hout;
Aanvaarding: in overleg (kan spoedig).
Plattegronden
180859867_1601045_kerkw_begane_grond_first_design_20260106_e7f491.jpg
180859867_1601045_kerkw_eerste_verdiepi_first_design_20260106_fb8fd5.jpg
180859867_1601045_kerkw_tweede_verdiepi_first_design_20260106_b7a8ab.jpg
180859867_1601045_kerkw_kas_first_design_20260106_3e05fb.jpg
180859867_1601045_kerkw_kelder_first_design_20260106_e96ffc.jpg