Beschrijving
Riante uitgebouwde eengezinswoning, gemoderniseerd en voorzien van heerlijke tuin op het zuidwesten, direct grenzend aan het water en met een uitstekende ligging in de kindvriendelijk wijk Middenpolder.
Deze royale woning is in de afgelopen jaren gemoderniseerd en is daarmee instapklaar! Dankzij de uitbouw aan de voorzijde van de woning is er veel leefruimte op de benedenverdieping ontstaan. Zo tref je op de begane grond een grote tuingerichte woonkamer met eikenhouten vloer en schuifpui naar de tuin, luxe en ruime keuken met diverse inbouwapparatuur en een heerlijk diepe tuin gelegen op het zuidwesten en direct grenzend aan het water. De 1e verdieping biedt plaats aan 2 (voorheen 3) slaapkamers en een moderne badkamer. De 2e verdieping beschikt over een voorzolder en een ruime 3e slaapkamer.
De ligging is uitstekend, nabij het vijverpark, scholen, winkels, openbaar vervoer, de kinderboerderij, het zwembad en uitvalswegen. Kinderen kunnen in de buurt gebruik maken van diverse speelpleinen, waaronder de schoolpleinen van twee basisscholen.
Indeling
Begane grond:
Voortuin:
De voortuin is keurig aangelegd met straatwerk en bloemborder en biedt toegang tot de uitgebouwde entree en de berging aan de voorzijde.
Berging:
De stenen berging aan de voorzijde is voorzien van elektra, wateraansluiting en de nodige bergruimte.
Entree:
De entree biedt plaats aan de meterkast (8 groepen + aardlekschakelaar) en geeft toegang naar de woonkamer en het toilet. De gehele begane grond is keurig afgewerkt met een massieve eikenhouten vloer en nette wand- en plafondafwerking.
Toilet:
Het toilet is gedeeltelijk betegeld en is voorzien van een fontein.
Woonkamer:
De riante woonkamer met uitgebouwde open keuken is echt een heerlijke ruimte! Via een schuifpui is er toegang naar de achtertuin en middels een vaste trap bereikt u de 1e verdieping. Verder is de woonkamer voorzien van een elektrisch bedienbaar zonnescherm.
Keuken:
De luxe open keuken in U-opstelling is uitgevoerd in lichte kleurstelling met natuurstenen aanrechtblad. De keuken beschikt over een bar en is voorzien van diverse (inbouw)apparatuur, te weten; combi-oven, inductiekookplaat, afzuigschouw, close-in-boiler, vaatwasser en een Amerikaanse koelkast (ter overname). Tevens beschikt de keuken over veel praktische opbergmogelijkheden.
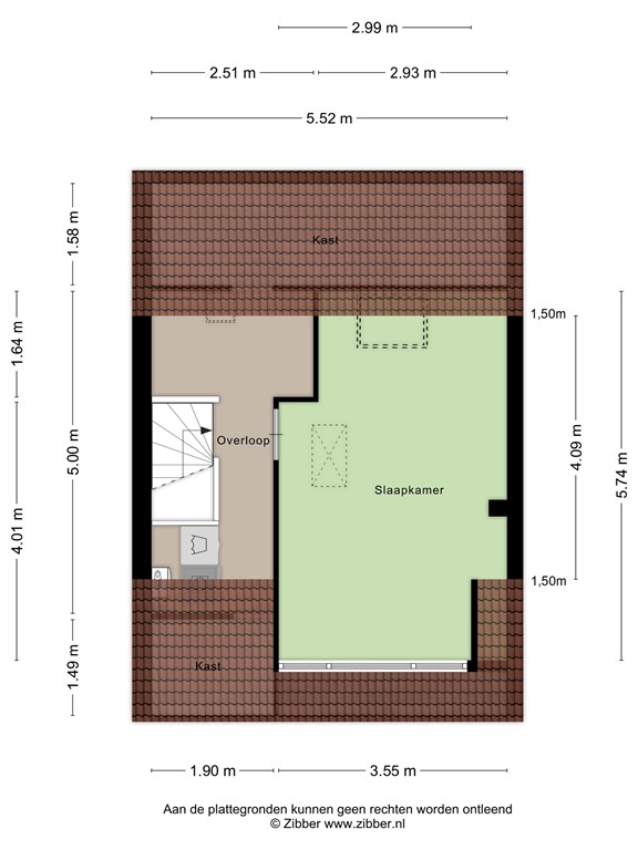
Eerste verdieping:
Overloop:
De overloop op de 1e verdieping biedt toegang tot 2 (voorheen 3) slaapkamers en de luxe badkamer en middels een vaste trap heeft u toegang tot de tweede verdieping. De overloop is afgewerkt met een laminaatvloer. De trappen naar de 1e en 2e verdieping zijn voorzien van pvc trapbekleding.
Slaapkamers:
Slaapkamer 1 is gelegen aan de achterzijde van de woning en is voorzien van een laminaatvloer en 2 elektrisch bedienbare rolluiken. Voorheen waren dit 2 slaapkamers.
Slaapkamer 2 is gelegen aan de voorzijde en is eveneens voorzien van een laminaatvloer en 2 elektrisch bedienbare rolluiken. Deze kamer biedt tevens plaats aan een echte walk-in-closet!
Badkamer:
De moderne badkamer (2021) is geheel betegeld en beschikt over een inloopdouche, 2e toilet, dubbel badkamermeubel en een designradiator.
Tweede verdieping:
Voorzolder:
De voorzolder is afgewerkt met een laminaatvloer en biedt plaats aan de HR CV-Combiketel (Intergas, 2022) en aansluiting voor de wasmachine en droger. Achter de knieschotten bevindt zich extra bergruimte. De voorzolder geeft toegang tot slaapkamer 3.
Slaapkamer 3:
Deze slaapkamer betreft een ruime kamer welke is voorzien van een laminaatvloer, dakkapel aan de voorzijde en dakraam aan de achterzijde. Via een luik is er toegang naar een bergvliering.
Tuin:
De circa 12 meter diepe achtertuin is gelegen op het zonnige zuidwesten en biedt veel privacy. Deze kleurrijke tuin is voorzien van stenen bloembakken met diverse beplanting, sierbestrating, houten schuttingen, wateraansluiting en een sfeervolle houten veranda. De veranda, grenzend aan het water, is uitgevoerd met Louvre-wanddelen, elektra en verlichting.
Overige:
De begane grond en 1e verdieping (2022) zijn geheel voorzien van kunststof kozijnen met HR++ beglazing. De dakkapel op de 2e verdieping is voorzien van een houten kozijn met dubbele beglazing;
De gehele woning is in 2022 voorzien van nieuwe Keralit gevelbekleding met isolatie;
Voorzien van dakisolatie;
Zinken goten zijn in 2022 vernieuwd;
HR CV-combiketel (Intergas, 2022);
Elektrisch bedienbaar zonnescherm op de begane grond en gehele 1e verdieping voorzien van elektrisch bedienbare rolluiken;
Betonnen constructievloeren;
Diverse meubels worden ter overname aangeboden;
Aanvaarding: in overleg (juni 2026).
Plattegronden
181177468_1601728_pj_begane_grond_first_design_20260114_844986.jpg
181177468_1601728_pj_eerste_verdiepi_first_design_20260114_719d7b.jpg
181177468_1601728_pj_tweede_verdiepi_first_design_20260114_232017.jpg
181177468_1601728_pj_zolder_first_design_20260114_4d55d1.jpg
181177468_1601728_pj_overkapping_first_design_20260114_b99ebd.jpg