| Adres: | Julianastraat 48A, 3361 XJ Sliedrecht |
| Prijs | € 339.500,- k.k. |
| Type object | Appartement, benedenwoning |
| Woonoppervlakte | 77 m² |
| Aanvaarding | In overleg |
| Status | Verkocht |
Heerlijk ruime en moderne 3-kamer benedenwoning (2012) met prachtige tuin op het zuiden, eigen parkeerplaats in de parkeerkelder en energielabel A! Deze leuke woning is verdeeld over 2 woonlagen en is geheel voorzien van vloerverwarming. Op de 1e woonlaag treft u onder meer een eigen toegangsdeur met hal/entree, luxe keuken met diverse inbouwapparatuur en een ruime woonkamer met schuifpui naar de heerlijke tuin. De 2e woonlaag biedt plaats aan een luxe badkamer, 2 ruime slaapkamers en een praktische wasruimte. In de ondergelegen parkeerkelder beschikt u over een eigen parkeerplaats en berging. Het complex is in 2012 gebouwd en verkeert in uitstekende staat van onderhoud. De woning is gelegen in ‘De Oude Uitbreiding’ op loopafstand van diverse voorzieningen, zoals de winkelpromenade de Kerkbuurt, scholen en openbaar vervoer. De gezellige haven vindt u op een steenworp afstand.
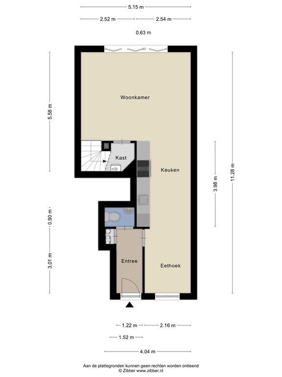
Indeling op de begane grond: Entree: Via het bordes heeft u toegang tot de eigen voordeur. De hal/entree biedt plaats aan de meterkast en het toilet. De woning is keurig afgewerkt met laminaatvloeren, glasvliesbehang en gespoten plafonds. Daarnaast is de gehele woning voorzien van vloerverwarming. Toilet: Het toilet is gedeeltelijk betegeld en is voorzien van een fontein. Keuken: De luxe keuken in rechte opstelling is voorzien van een kunststof aanrechtblad en achterwand en beschikt over diverse inbouwapparatuur, te weten; vaatwasser, combi-oven, koelkast, vriezer, 5-pits gaskookplaat en afzuigschouw. De keuken biedt daarnaast de nodige bergruimte. Aan de voorzijde treft u een gezellige eethoek. Woonkamer: De ruime en lichte tuingerichte woonkamer is gesitueerd aan de achterzijde. De woonkamer is voorzien van sfeervolle shutters, schuifpui naar de achtertuin, elektrisch bedienbaar zonnescherm en een vaste kast met de nodige bergruimte en opstelplaats van de HR CV-combiketel (Remeha Avanta, 2012). Middels een vaste trapopgang heeft u toegang naar de 1e verdieping. Tuin: De heerlijk ruime tuin aan de achterzijde is gelegen op het zonnige zuiden en is voorzien van houten schuttingen, achteruitgang, sierbestrating, sfeervolle pergola en elektra. Indeling op de 1e verdieping: Overloop: De overloop op de 1e verdieping biedt toegang tot de diverse vertrekken. De gehele verdieping is keurig afgewerkt met laminaatvloeren en vloerverwarming. Wasruimte: De praktische wasruimte biedt plaats aan de WTW-unit, aansluiting voor de wasmachine en droger en beschikt over de nodige bergruimte. Slaapkamers: Slaapkamer 1 is gelegen aan de achterzijde en is voorzien van een elektrisch bedienbaar rolluik. Slaapkamer 2 is eveneens gelegen aan de achterzijde en is ook voorzien van een elektrisch bedienbaar rolluik. Badkamer: De keurige badkamer is geheel betegeld en voorzien van een douchecabine, toilet, badkamermeubel en designradiator. Parkeerplaats: In de onderbouw van het complex treft u een eigen parkeerplaats. Berging: In de onderbouw treft u tevens een eigen berging welke is voorzien van elektra. Overige: Bouwjaar 2012; Energielabel A; Het complex beschikt over een actieve vereniging van eigenaren met een bijdrage van € 81,89 per maand voor de woning met berging en € 37,05 per maand voor de parkeerplaats; Volledig voorzien van kunststof kozijnen met HR++ beglazing; Voorzien van raamhorren; Eigen toegangsdeur; Eigen parkeerplaats en berging in de onderbouw; Algemene fietsenstalling in de onderbouw; Mogelijkheid voor eigen zonnepanelen; Aanvaarding: in overleg (half december 2025).
| Referentienummer | 600 |
| Vraagprijs | € 339.500,- k.k. |
| Servicekosten | € 118,94 |
| Status | Verkocht |
| Aanvaarding | In overleg |
| Aangeboden sinds | Woensdag 1 oktober 2025 |
| Laatste wijziging | Zaterdag 6 december 2025 |
| Type object | Appartement, benedenwoning |
| Woonlaag | 1e woonlaag |
| Soort bouw | Bestaande bouw |
| Bouwperiode | 2012 |
| Dakbedekking | Dakpannen |
| Type dak | Zadeldak |
| Isolatievormen | Ankerloze spouwmuren Dakisolatie HR-glas Kierdichting Muurisolatie Spouwmuren Vloerisolatie Volledig geïsoleerd |
| Woonoppervlakte | 77 m² |
| Inhoud | 253 m³ |
| Oppervlakte externe bergruimte | 5 m² |
| Oppervlakte gebouwgebonden buitenruimte | 37 m² |
| Aantal bouwlagen | 2 |
| Aantal kamers | 3 (waarvan 2 slaapkamers) |
| Aantal badkamers | 1 (en 1 apart toilet) |
| Ligging | Aan rustige weg Dichtbij openbaar vervoer In woonwijk Nabij school Nabij snelweg |
| Type | Achtertuin |
| Hoofdtuin | Ja |
| Oriëntering | Zuiden |
| Heeft een achterom | Ja |
| Staat | Prachtig aangelegd |
| Energielabel | A |
| CV ketel | Remeha Avanta HR |
| Warmtebron | Gas |
| Bouwjaar | 2012 |
| Combiketel | Ja |
| Eigendom | Eigendom |
| Aantal parkeerplaatsen | 1 |
| Aantal overdekte parkeerplaatsen | 1 |
| Warm water | CV-ketel |
| Verwarmingssysteem | Centrale verwarming Vloerverwarming Warmterecuperatiesysteem |
| Ventilatie methode | Balansventilatie |
| Keukenvoorzieningen | Inbouwapparatuur |
| Badkamervoorzieningen | Douche Toilet Wastafel |
| Parkeergelegenheid | Parkeerkelder |
| Heeft kabel-tv | Ja |
| Tuin aanwezig | Ja |
| Heeft rolluiken | Ja |
| Heeft schuur/berging | Ja |
| Heeft een schuifpui | Ja |
| Heeft zonwering | Ja |
| Ingeschreven bij de KvK | Ja |
| Jaarlijkse vergadering | Ja |
| Periodieke bijdrage | Ja |
| Reservefonds | Ja |
| Meer jaren onderhoudsplan | Ja |
| Opstal verzekering | Ja |
| Kadastrale aanduiding | Sliedrecht H 8849 |
| Omvang | Appartementsrecht of complex |
| Indexnummer | 3 |
| Kadastrale aanduiding | Sliedrecht H 8849 |
| Omvang | Appartementsrecht of complex |
| Eigendomsituatie | Eigen grond |
| Indexnummer | 9 |
| Kadastrale aanduiding | Sliedrecht H 8849 |
| Omvang | Appartementsrecht of complex |
| Eigendomsituatie | Eigen grond |
| Indexnummer | 33 |