Beschrijving
Uniek! Schitterend afgewerkt (recreatie)chalet met vrijstaande berging en twee parkeerplaatsen, gelegen op een groot perceel huurgrond van 295 m². Geen overdrachtsbelasting en notariskosten verschuldigd, de vraagprijs is vrij op naam. 365 dagen recreëren mogelijk!
Het chaletpark is gelegen naast natuurgebied De Hollandse Biesbosch net buiten Dordrecht. Het resort heeft een jachthaven waar gasten een aanlegplaats kunnen huren: ideaal voor de watersporter!
Het chalet is in 2013 vervaardigd uit onderhoudsvriendelijk, kunststof materiaal. Het chalet is zeer luxe afgewerkt en volledig voorzien van kunststof kozijnen met HR++ beglazing. Het chalet is tevens voorzien van centrale verwarming middels een HR CV-combiketel en in de woonkamer is airconditioning aanwezig.
Het chalet beschikt onder meer over een royale woonkamer met 2x openslaande deuren naar de tuin, zeer luxe open keuken met diverse inbouwapparatuur, luxe badkamer, drie slaapkamers en een prachtige tuin op het zuidwesten.
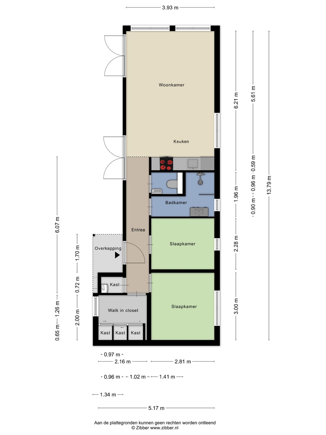
De woning beschikt over een woonoppervlakte van ca. 58 m², een inhoud van 214 m3 en is zeer energiezuinig.
Indeling
Begane grond:
Het gehele chalet is stijlvol afgewerkt met een fraaie laminaatvloer in warme eiken kleurstelling en nette plafonds voorzien van inbouwspots, wat zorgt voor een moderne en verzorgde uitstraling.
Entree:
Bij binnenkomst geeft de entree toegang tot alle vertrekken van de woning. Vanuit hier bereikt u de royale woonkamer met open keuken, drie slaapkamers, de badkamer, een separaat toilet en een praktische vaste kast met de opstelling van de HR CV-combiketel en extra bergruimte.
Toilet:
Het toilet is in 2022 volledig gemoderniseerd en uitgevoerd in een lichte, frisse kleurstelling. De ruimte beschikt over een hangtoilet en een fontein met bijpassend kastje, wat zorgt voor extra comfort en opberggemak.
Woonkamer:
De royale woonkamer met open keuken vormt het hart van de woning en biedt een prachtig uitzicht op de fraai aangelegde tuin. Dankzij de kamerhoge ramen geniet u hier van een aangename lichtinval en een ruimtelijk gevoel.
De woonkamer is uitgerust met airconditioning, een sfeervolle elektrische haard en een hoog plafond met inbouwspots. Via twee openslaande deuren heeft u direct toegang tot de tuin, waardoor binnen en buiten naadloos in elkaar overlopen.
Keuken:
De zeer luxe open keuken is uitgevoerd in een moderne witte kleurstelling en voorzien van een stijlvol granieten aanrechtblad. De keuken is compleet uitgerust met hoogwaardige inbouwapparatuur, waaronder een vaatwasser, een 4-pits inductiekookplaat (2024), een RVS afzuigkap, een combi oven/magnetron (2024) en een koelkast/vriescombinatie (2024).Daarnaast beschikt de keuken over veel kastruimte en een opengaand raam voor natuurlijke ventilatie.
Badkamer:
De ruime en luxe badkamer is in 2022 volledig gemoderniseerd. De ruimte is volledig betegeld in een stijlvolle combinatie van lichte en antracietkleurige tegels. De badkamer beschikt over een inloopdouche, een modern wastafelmeubel, een designradiator en een opengaand raam.
Slaapkamers:
Slaapkamer 1, Gelegen aan de voorzijde van de woning, voorzien van fraai afgewerkte wanden en een laminaatvloer in eiken kleurstelling.
Slaapkamer 2, Eveneens gelegen aan de voorzijde en praktisch ingericht met kasten aan het plafond, waardoor de ruimte optimaal wordt benut.
Slaapkamer 3, Gelegen aan de achterzijde van de woning, met directe toegang tot de tuin via een deur en voorzien van een vaste kastenwand.
Tuin:
De riante en schitterend aangelegde achtertuin van circa 160 m² is in 2022/2023 volledig vernieuwd. De tuin ligt gunstig op het zuidwesten en biedt veel privacy dankzij de groene hagen rondom. De tuin beschikt over meerdere terrassen, sierbestrating, een vlonderterras en fraai aangelegde plantenborders. Tevens is er een houten berging (2022) aanwezig, voorzien van elektra en aansluitingen voor een wasmachine en droger. De tuin is daarnaast uitgerust met een poort met ‘Ring’ deurbel. De twee grote parasols en tuinmeubels worden ter overname aangeboden.
Voorzijde:
Aan de voorzijde van het chalet bevinden zich twee eigen parkeerplaatsen. De woning is gunstig gelegen, vlakbij de jachthaven.
Omgeving:
Het vakantiepark Resort De Biesbosch ligt direct naast het prachtige natuurgebied De Hollandse Biesbosch, net buiten Dordrecht in Willemsdorp.
Het park beschikt over een jachthaven waar een aanlegplaats gehuurd kan worden, ideaal voor watersportliefhebbers. Met de boot vaart u zo het natuurgebied in.
Daarnaast biedt het park diverse faciliteiten, waaronder een binnen- en buitenzwembad, sportvelden en speelvoorzieningen voor kinderen. Ook zijn er een brasserie, snackbar, bar en een indoor speeltuin aanwezig.
Overige:
- Het chalet is in 2013 gebouwd en verkeert in zeer nette staat;
- Het recreatiechalet kan 365 dagen per jaar voor recreatie worden gebruikt;
- Het object betreft een recreatiewoning op HUURGROND. Het is NIET mogelijk om hier een hypotheek op te vestigen.
- De parkservicebijdrage van het park bedraagt € 3.872,- (2026) per jaar inclusief BTW, exclusief zuiveringsheffing, afval, Videma en netbeheerskosten, zie hiervoor de tabel in de brochure;
- Voor de huurgrond betaalt u € 2.083,38 per jaar;
- GEEN overdrachtsbelasting of notariskosten verschuldigd;
- HR CV Combiketel (Remeha Avanta, 2013);
- De wanden zijn fraai afgewerkt, voorzien van glad glasvliesbehang;
- Het gehele chalet is voorzien van kunststof kozijnen en HR++ beglazing;
- Airconditioning in woonkamer;
- Gas/water/elektra bedragen € 85,- per maand;
- Eigenarenvereniging van het park, eventueel lidmaatschap kost € 70,- per jaar en eenmalig inschrijfgeld € 25,-;
- Aanvaarding: in overleg.