Beschrijving
Wonen op Krabbelaar 6 in Sliedrecht betekent genieten van comfort, ruimte en duurzaamheid in een bijzonder fijne leefomgeving.
Deze instapklare twee-onder-een-kapwoning met inpandige garage is in de afgelopen jaren op alle fronten gemoderniseerd en verduurzaamd, met onder andere een warmtepomp, zonnepanelen, nieuwe kunststof kozijnen met dubbel en tripple HR++ beglazing en een nieuwe cv-ketel.
Dankzij deze voorzieningen beschikt de woning over het energiezuinige energielabel A+, dus klaar voor de toekomst!
Met een royale woonkamer, een moderne open keuken (2020), vier slaapkamers, een luxe badkamer én een zonnige tuin op het westen met overkapping, biedt dit huis alles wat je zoekt. De inpandige garage met elektrische deur, eigen oprit en ruime opbergmogelijkheden maken het plaatje compleet.
De woning is gelegen in een rustige straat in de geliefde, groene en kindvriendelijke wijk ‘De Grienden’. Deze wijk staat bekend om zijn gevarieerde woningaanbod, brede straten en het vele groen. Voor gezinnen is het hier ideaal: op loopafstand vind je een basisschool, speelplaatsen, een supermarkt, wijkpark “de Grienden” en een bushalte. Bovendien ben je met enkele minuten rijden op de A15 en op 20 minuten loopafstand of 7 minuten fietsafstand van het NS station Sliedrecht, wat zorgt voor een uitstekende bereikbaarheid richting Dordrecht, Rotterdam of Utrecht.
Kortom: een bijzonder comfortabele en duurzame woning op een toplocatie in Sliedrecht.
Indeling
Begane grond:
Voortuin:
De voortuin biedt plaats aan de oprit met parkeerplaats voor de auto op eigen grond. De voortuin is voorzien van diverse beplanting en geeft toegang tot de entree. Tevens heeft u via de zijkant direct toegang tot de achtertuin.
Entree:
Via de nette entree met tegelvloer, meterkast (8 groepen + aardlekschakelaar) en gespoten wanden en plafonds kom je in een warm welkom. Vanuit hier is er direct toegang tot de garage, het toilet en de trap naar de eerste verdieping.
Toilet:
De toiletruimte is modern, vernieuwd in 2019 en voorzien van een zwevend toilet, fontein en volledige betegeling, welke zorgen voor een frisse en eigentijdse uitstraling.
Woonkamer:
Zodra je de woonkamer binnenstapt, valt het licht je meteen op! Dankzij de grote ramen, de tuindeur met triple glas en de sfeervolle afwerking voelt het hier direct als thuiskomen. De akoestische lattenwand, laminaatvloer, rolgordijnen, moderne radiator-afwerking en het vernieuwde schakelmateriaal maken het plaatje compleet. De grote raampartij met triple beglazing zorgen voor warmte in de winter, koelte in de zomer en stilte het hele jaar door. Vanuit hier loop je zó de tuin in!
Keuken:
Koken wordt een feestje in deze stijlvolle en praktische U-vormige keuken (2020) met strak witte fronten, een houten aanrechtblad, een gezellig barretje en moderne apparatuur, te weten; inductiekookplaat (AEG), oven (AEG), vaatwasser (AEG), afzuigschouw en een losse Samsung kolkast (ter overname). Een heerlijke plek om samen te koken én te borrelen!
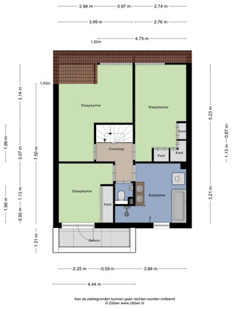
1e verdieping:
Overloop:
De gehele verdieping is voorzien van een nette laminaatvloer. Alle deuren zijn afgewerkt met modern beslag. Je hebt hier toegang tot drie fijne slaapkamers, een separaat toilet, de badkamer en de vaste trap naar de tweede verdieping.
Badkamer:
Ruime en complete badkamer, voorzien van een inloopdouche (2018), dubbel wastafelmeubel, ligbad én de aansluitingen voor wasmachine en droger. Volledig betegeld en met een moderne radiatorafwerking. Hier begin je elke dag goed!
Slaapkamers:
Slaapkamer 1 aan de achterzijde met dakkapel, op maat gemaakte kastenwand met verlichting, radiatorombouw en verduisterende gordijnen. Comfort en rust gegarandeerd.
Slaapkamer 2 is ook gelegen aan de achterzijde en voorzien van dakkapel en maatgordijnen. Ideaal als kinder- of logeerkamer.
Slaapkamer 3 bevindt zich aan de voorzijde, met rolgordijn, kastenwand met schuifdeuren én directe toegang tot het balkon.
Balkon:
Een fijne bonus: het balkon op het oosten, bereikbaar vanuit slaapkamer 3. Voorzien van kunststof vlonders en perfect voor een ochtendkoffie in de zon!
2e verdieping:
Overloop:
Met een vast bureau, een nieuw Velux dakraam (2023) met verduisteringsgordijn én toegang tot een royale schuifwandkast met veel bergruimte en een kast met alle technische snufjes, zoals de Remeha Avanta Ace cv-ketel (2025), Remeha Elga Ace warmtepomp (2025), mechanische ventilatie-unit en de omvormer zonnepanelen (2025). Tevens een luik naar een handige bergzolder.
Slaapkamer 4
Heerlijk lichte kamer dankzij het Velux dakraam (2023). Onder het schuine dak is slimme kastruimte gecreëerd – perfect als werk- of logeerkamer.
Tuin:
Hier wil je elke zomer doorbrengen! De fraai aangelegde achtertuin ca. 11 meter diep en 7,5 meter breed ligt op het westen, dus volop middag- en avondzon. Genieten onder de overkapping van de houten blokhut, met elektra, vaste planten, een wateraansluiting, sierbestrating én een zonnescherm. De tuin is omringd door houten schuttingen en een groene haag, met een poort naar de voorkant. Volop privacy en sfeer!
Garage:
De garage is voorzien van een elektrisch bedienbare en geïsoleerde paneeldeur én een handige loopdeur naar de entree. Perfect als werkruimte, berging of voor de auto.
Overige:
- Geheel voorzien van nieuwe kunststof raam kozijnen in 2023, alles dubbel glas en de beide grote woonkamer ramen zelfs triple glas (HR++);
- Twee nieuwe Velux ramen in 2023 met dubbel glas (HR++);
- Betonnen constructievloeren;
- Volledig geïsoleerd;
- Remeha Avanta Ace cv-ketel (2025), Remeha Elga Ace warmtepomp (2025) en mechanische ventilatie-unit;
- 6 zonnepanelen (2025), 445 Wp/st;
- Energielabel A+, geldig tot 6 oktober 2035;
- Aanvaarding: 14 juli 2026.
Omgeving:
Een rustige straat in de geliefde, groene en kindvriendelijke wijk ‘De Grienden’ op loopafstand van een basisschool, speelplaatsen, een supermarkt, wijkpark “de Grienden” en een bushalte. Bovendien ben je met enkele minuten rijden op de A15 en op 20 minuten loopafstand of 7 minuten fietsafstand van het NS station Sliedrecht.