Beschrijving
Hoogwaardig afgewerkte geschakelde woning op een rustige en groene toplocatie, direct aan een autovrije wandelpromenade en op steenworp afstand van het Munnikepark.
Deze woning combineert luxe, comfort en duurzaamheid op een uitstekende manier. Met een zeer royale woonkamer, een luxe open keuken, riante bijkeuken, vier grote slaapkamers en een zonnige tuin op het zuiden is dit een ideale gezinswoning.
De woning is tot in detail verzorgd en voorzien van onder andere vloerverwarming, airconditioning, maar liefst 28 zonnepanelen en energielabel A.
Hier woont u in alle rust, met voorzieningen, zoals scholen, winkels, natuur en uitvalswegen binnen handbereik.
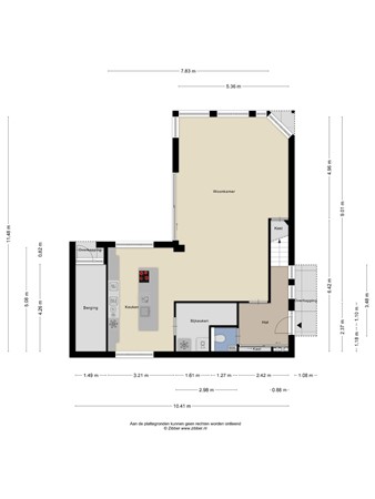
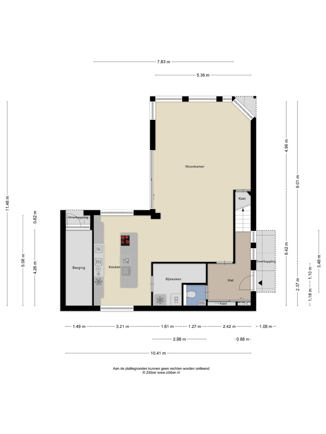
Indeling
Voortuin:
De voortuin met entree is gelegen aan de zijkant van de woning en is verzorgd aangelegd met vaste beplanting. Een prettige en groene binnenkomer die direct de rustige ligging van de woning benadrukt.
Begane grond:
Entree:
De ruime entree straalt direct kwaliteit uit. In 2017 is de gehele begane grondvloer gemoderniseerd, met voerverwarming, die ook geschikt is voor een warmtepomp en een luxe Braziliaanse leistenen vloer, RVS plinten en nieuw schakelmateriaal. Vanuit de hal heeft u toegang tot het toilet, de trapopgang naar de eerste verdieping en via een glazen deur tot de woonkamer. Daarnaast beschikt de hal over een riante garderobekast en een uitgebreide meterkast met 11 groepen en 3 aardlekschakelaars.
Toilet:
De toiletruimte is volledig betegeld, uitgevoerd met een wandtoilet en een compact wastafelmeubel. Inbouwspots en mechanische ventilatie zorgen voor extra comfort en een verzorgde afwerking.
Woonkamer:
De woonkamer is een absolute blikvanger en kenmerkt zich door de royale afmetingen en de prachtige lichtinval. Grote raampartijen en de aluminium schuifpui naar de tuin zorgen voor een optimale verbinding tussen binnen en buiten. De ruimte biedt een ruim zitgedeelte en een volwaardig eetgedeelte, perfect voor zowel dagelijks gebruik als gezellige avonden met gasten. De strak gestuukte plafonds zijn voorzien van stijlvolle lichtkoven met indirecte verlichting, wat zorgt voor een warme en luxe sfeer. Vanuit de woonkamer is er toegang tot de trapkast, die momenteel slim is ingericht als werkplek met een vast bureau. De houten horizontale lamellen geven het geheel een sfeervolle finishing touch.
Keuken:
De open keuken, vernieuwd in 2017, vormt een prachtig geheel met de woonkamer en is zowel stijlvol als functioneel ingericht. De keuken beschikt over een vaste kastenwand en een royaal kookeiland en is uitgerust met hoogwaardige Siemens inbouwapparatuur, waaronder een koelkast, vriezer, combi oven/magnetron, combi stoomoven, koffiezetautomaat, warmhoudlade, vaatwasser en een 4-pits inductiekookplaat met afzuiging (direct naar buiten). Daarnaast is er een combi Quooker aanwezig. Het werkblad en de vensterbanken zijn uitgevoerd in cementgebonden vezelplaat, wat zorgt voor een moderne en robuuste uitstraling. Dankzij de ramen aan beide zijden, voorzien van houten lamellen, is de keuken heerlijk licht. Het verlaagde plafond met dimbare inbouwverlichting maakt het geheel compleet. Via een glazen deur bereikt u de bijkeuken.
Bijkeuken / wasruimte:
Direct grenzend aan de keuken bevindt zich de praktische bijkeuken. Deze ruimte is ingericht met de opstelling voor wasmachine en droger (met afvoer naar buiten) en biedt volop bergruimte. Een functionele toevoeging die perfect aansluit bij het dagelijks wooncomfort.
Tuin:
De fraai aangelegde achtertuin (circa 6,70 x 4,91 meter) ligt op het zonnige zuiden en is een heerlijke plek om te ontspannen. De tuin is voorzien van verzorgde bestrating, moderne plantenborders, een stalen poort, tuinverlichting en subtiele verlichting in de tegels. Daarnaast zijn er schemerschakelaars met bewegingssensoren en een elektrisch zonnescherm aanwezig. Vanuit de tuin heeft u toegang tot de inpandige stenen berging. Deze is voorzien van een werkbank, kastruimte, elektra, verlichting en een wateraansluiting. Achter de woning is ook een strook tuin, direct aan de parkeerplaats van de Sonate.
Eerste verdieping:
Via de open trap met tapijt bereikt u de royale overloop. Deze centrale ruimte geeft toegang tot vier ruime slaapkamers, de badkamer en een aparte kast met de HR CV-combiketel (Remeha Calenta, 2018). De overloop is tevens voorzien van airconditioning, wat zorgt voor een aangenaam klimaat op de verdieping.
Slaapkamers:
Alle slaapkamers zijn fraai afgewerkt en praktisch ingedeeld.
Slaapkamer 1, gelegen aan de voorzijde, beschikt over een grote ingebouwde kastenwand en airconditioning. Het schuin oplopende dak zorgt voor een ruimtelijk en speels effect.
Slaapkamer 2, gelegen aan de achterzijde, is eveneens voorzien van airconditioning en beschikt over een op maat gemaakte inloopkast met vaste kasten en een vast tweepersoonsbed met vijf lades. Het maatwerk is vakkundig uitgevoerd door een scheepstimmerman en geeft de kamer een luxe uitstraling.
Slaapkamer 3, gelegen aan de voorzijde, is zeer efficiënt ingericht met een vast tweepersoonsbed met zes lades, een bureau en vaste kastruimte. Ook deze inrichting is op maat gemaakt door een scheepstimmerman. Via een vlizotrap is de bergzolder bereikbaar.
Slaapkamer 4, gelegen aan de achterzijde, beschikt over een bureau, wandkasten en eveneens een vlizotrap naar de bergzolder. Deze kamer is ideaal als werk-, kinder- of logeerkamer.
Badkamer:
De volledig betegelde badkamer is compleet en comfortabel uitgevoerd. U beschikt hier over een ruime inloopdouche met vernieuwde glaswand en thermostaatkraan, een ligbad met thermostaatkraan, een tweede wandtoilet en een dubbel wastafelmeubel met spiegelkast en verlichting. Daarnaast zorgen een raam, designradiator en mechanische ventilatie voor extra comfort.
Omgeving:
De woning is gelegen in een rustige, groene en kindvriendelijke woonomgeving. Direct nabij vindt u het Munnikepark en het Develbos, ideaal voor wandelen en recreatie. Winkelcentrum Oudeland ligt op loopafstand, evenals diverse basisscholen en middelbare scholen, waaronder het Develstein College. Ook sportvoorzieningen, een zwembad en manege De Hoge Devel bevinden zich in de directe omgeving. Dankzij de gunstige ligging bent u binnen vijf minuten op de A16 en is ook Rotterdam uitstekend bereikbaar. De ligging aan een autovrije wandelpromenade maakt dit een veilige en prettige woonomgeving.
Overig:
- Zeer goed onderhouden en gemoderniseerd
- Volledig voorzien van hardhouten kozijnen met dubbele beglazing
- Buitenkozijnen geschilderd in 2020
- Bitumen dak keuken en berging vernieuwd in 2023
- 28 zonnepanelen (2022, eigendom) met Enphase micro-omvormers
- Keuken vernieuwd in 2017
- Begane grond voorzien van RVS plinten, glazen binnendeuren en nieuw schakelmateriaal
- HR CV-combiketel Remeha Calenta (2018)
- Vloerverwarming op de begane grond (geschikt voor warmtepomp, m.u.v. bijkeuken)
- Airconditioning op overloop en in twee slaapkamers
- Twee mechanische ventilatie-units
- Horren aanwezig bij vrijwel alle te openen ramen (m.u.v. badkamer)
- Hoogwaardige wand- en plafondafwerking
- Volledig geïsoleerd
- Geschakeld via de berging, wat zorgt voor extra privacy
- Energielabel A
- Parkeren direct achter de woning
- Oplevering in overleg